by Denise Colestock, LEED A.P., ASID Eco Committee Member
Ever wonder how we can get our children to reconnect with nature? Eat healthy? Learn about sustainability? Rebuild Global has taken on that challenge by implementing a plan to build sustainable school gardens and structures throughout San Diego.
Rebuild Global is a non-profit organization which strives to create an environmentally and socially responsible world community. We collaborate as designers, organizations, city entities and creative individuals to work on projects and community building where it is unavailable and needed most.
Through our yearly design competition, ProjectFIND, Rebuild Global found a winning entry that would do just that. Taylor Scherner, a local designer, submitted the School Garden Network project which won the hearts of our judges, members and schools. Her project proposed the implementation of a sustainable garden and kitchen structure in all schools across San Diego County to teach children about local, healthy eating and sustainable design. We are well on our way to implementing our first two at Sherman Heights Elementary and Washington Elementary in downtown San Diego.
Sherman Heights Elementary, located in the Barrio Logan neighborhood, will be receiving a shipping container donated by Dole and designed pro bono by Kevin deFreitas, Architect. The shipping container will act as the kitchen where local cooks can teach the children how to cook and eat the fruits of their labor.
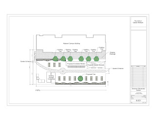
Washington Elementary, located in the Little Italy neighborhood, will be receiving a sustainable outdoor kitchen and host a booth in the Little Italy weekend farmers market where the children can sell some of their produce. The money made at the market will go back into the garden to keep it growing for years to come.
When childhood obesity is on the rise and children are becoming increasingly disconnected with nature, there is no better time than now to get them to discover their outside world. By engaging the children in the growth of plants and food, they will be able to understand where their food comes from and how it nurtures their bodies. They will gain an appreciation for it and an understanding of the importance of sustainable growth.
We will be breaking ground on both schools by the end of October and implementing the gardens in various stages. If you are interested in getting involved or donating garden materials and tools, please contact Sandra Plaza at splaza@rebuildglobal.org. To learn more about Rebuild Global and ProjectFIND, please visit http://www.rebuildglobal.org/.
Saturday, September 25, 2010
Get Outside! Bees, Seeds and Kids, Oh My!
Subscribe to:
Comments (Atom)

